<<

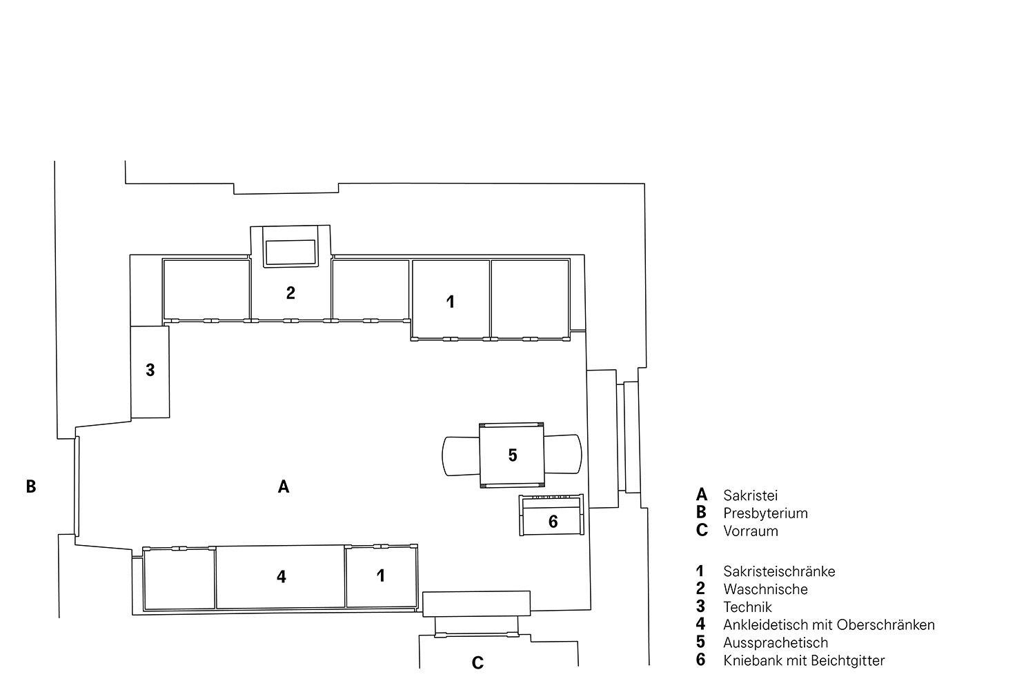
Kleinzell im Mühlkreis, Oberösterreich

Pfarrkirche hl. Laurentius > Umbau und Einrichtung der Sakristei > 2024

 

kleinzell-sakristei-2024-feiersinger-03kleinzell-sakristei-2024-feiersinger-04